
Green Hill Retreat
Green Hill Retreat Bảo Lộc không chỉ là một nơi nghỉ dưỡng, mà là một lối thoát khỏi sự xô bồ của cuộc sống thường nhật.

Thông Tin Dự Án
Vị Trí
Thôn 5, Lộc Tân, Bảo Lâm, Lâm Đồng
Chủ Đầu Tư
An Thịnh Phát
Loại Hình
Phân Khu Biệt Thự Rừng
Tiện Ích Đẳng Cấp
Quảng trường ca nhạc
Cafe, Nhà Hàng
Camping bên hồ, khu câu cá, chèo thuyền
Khu BBQ, hồ vô cực, công việc
Đồi chè tâm châu
Thác Dambri khoảng 30p
Chùa Linh Quy Pháp Ấn 40p
Vườn quốc gia Bidoup Núi Bà 1-1.5 giờ
Câu Chuyện Green Hill Retreat
Green Hill Retreat không bắt đầu từ bản vẽ, mà bắt đầu từ một lần vỡ oà trong tim. Một khoảnh khắc rất thật khi ta nhận ra, giữa cuộc sống hối hả và những giấc mơ thành phố. Ta đã đánh rơi điều quý giá nhất: cảm giác được sống.
Vị Trí Đắc Địa

Sơ Đồ Mặt Bằng
Mặt Bằng Khu Nghỉ dưỡng Green Hill Retreat
Sơ Đồ Phân Lô
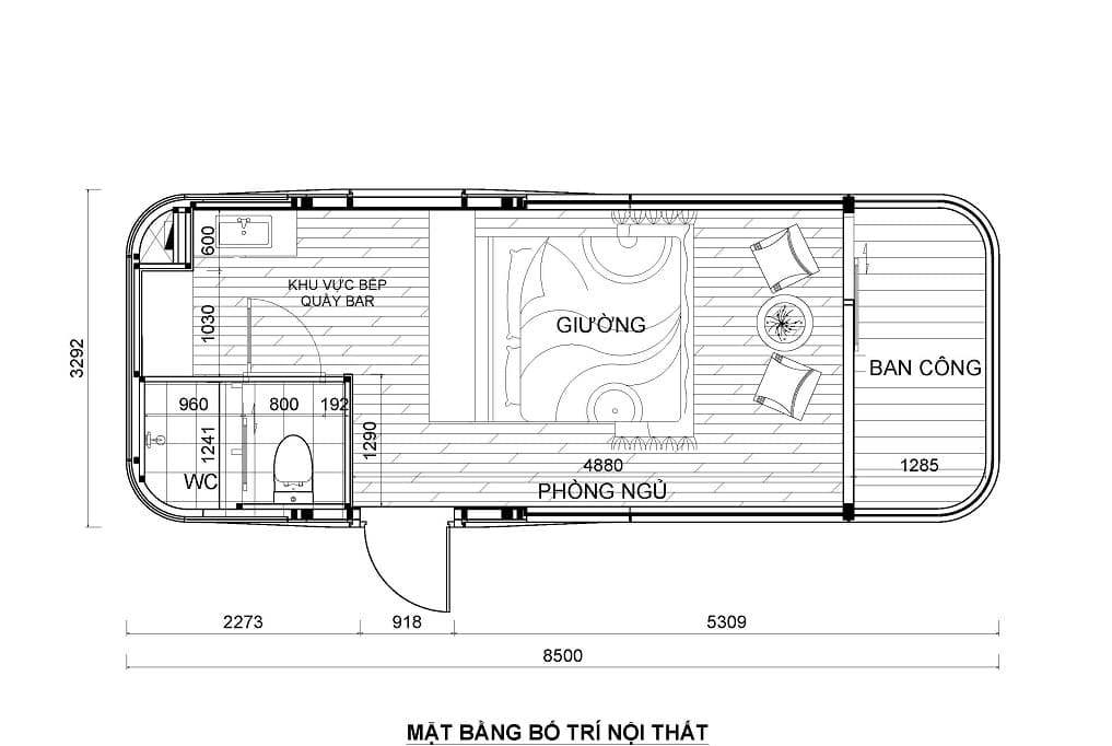
Mặt Bằng Nội Thất
Thư Viện Hình Ảnh









